• Home
  • Leistungen
  • Projekte
    • Arbeiten
  • Kontakt

kleine Auswahl meiner Arbeit

  • Alle
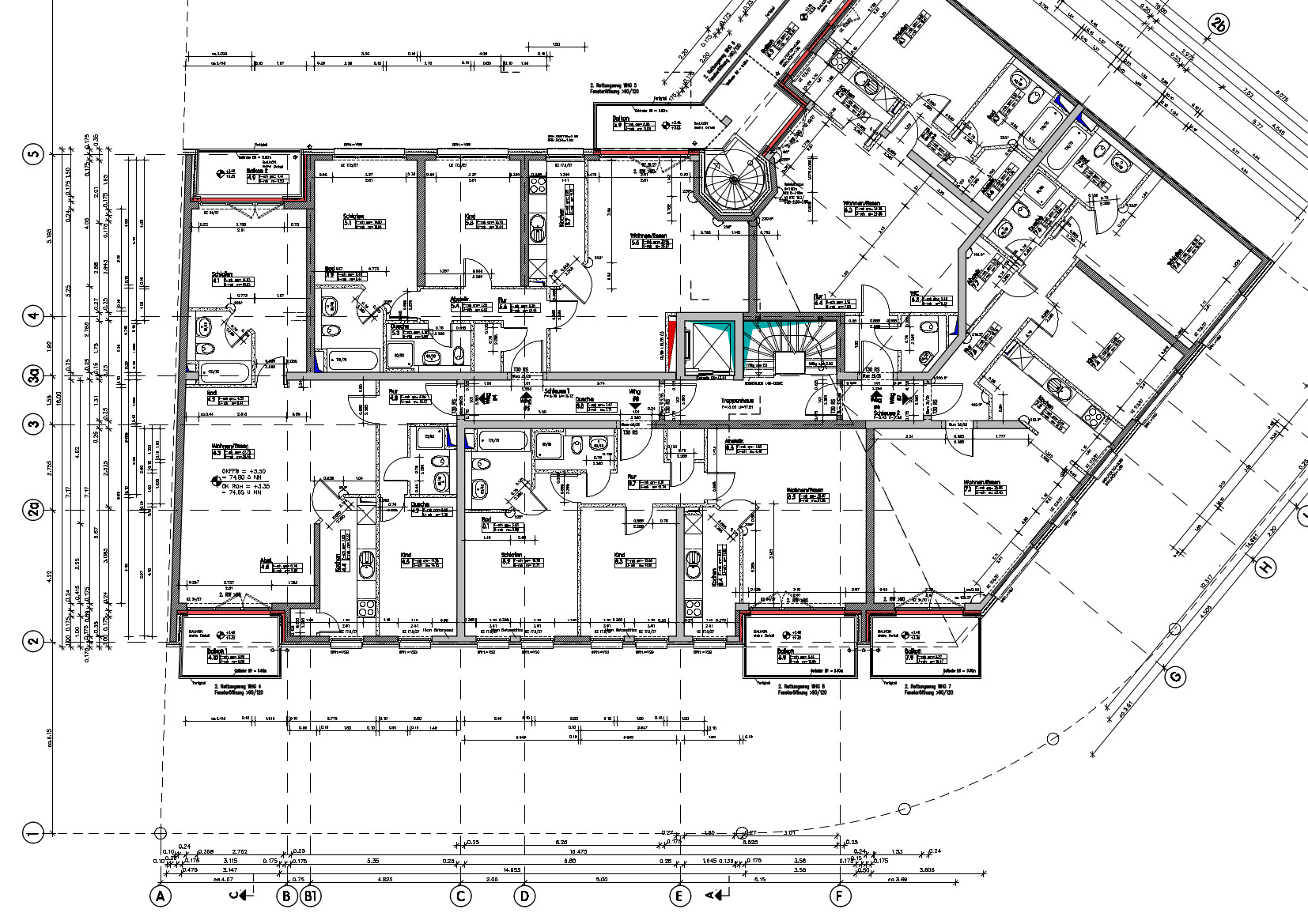
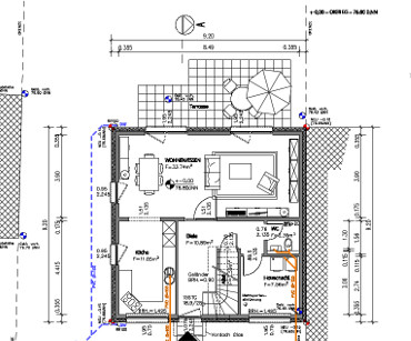
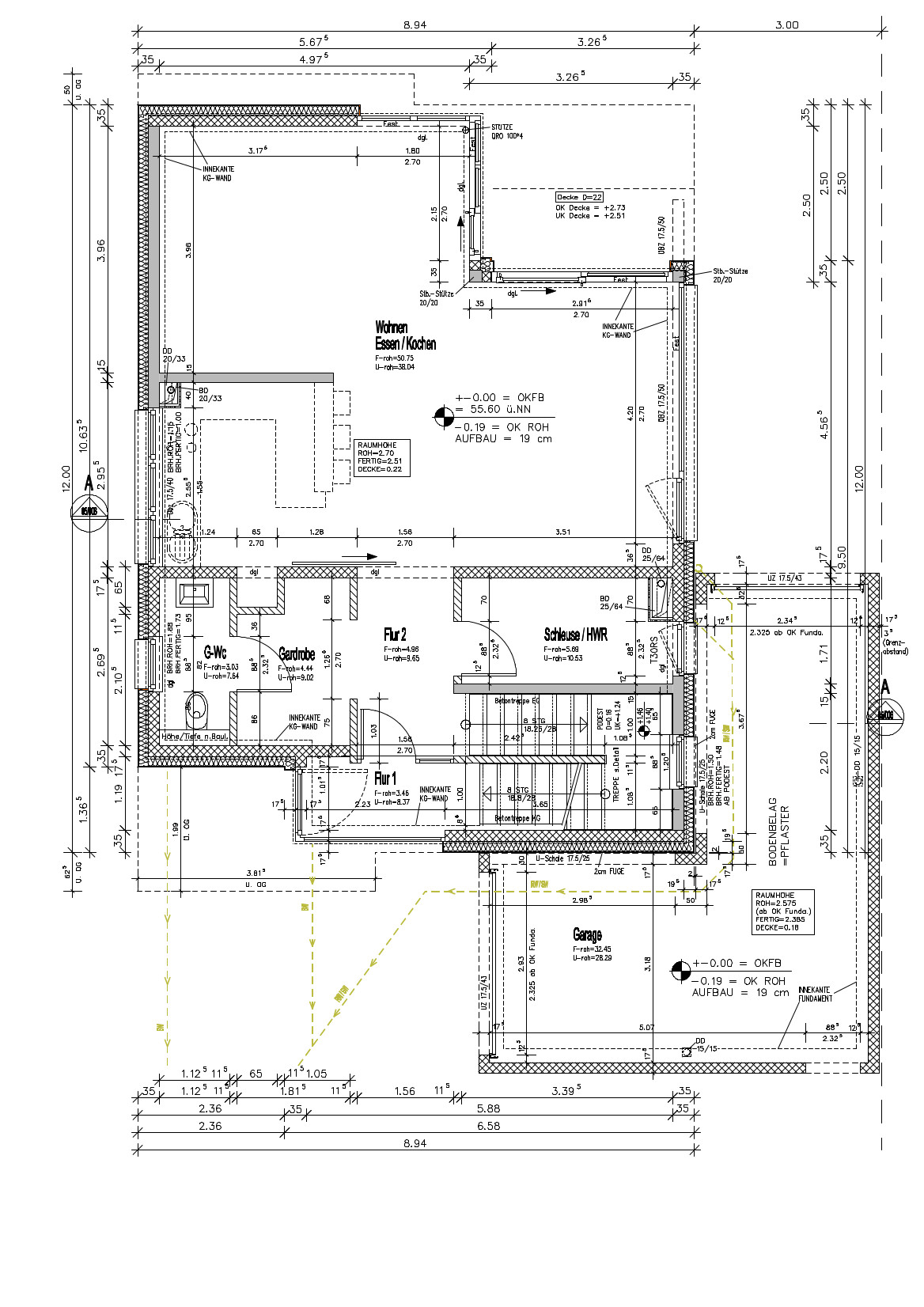
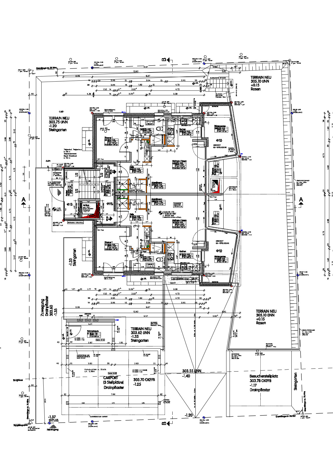
  • Bauantragszeichnungen
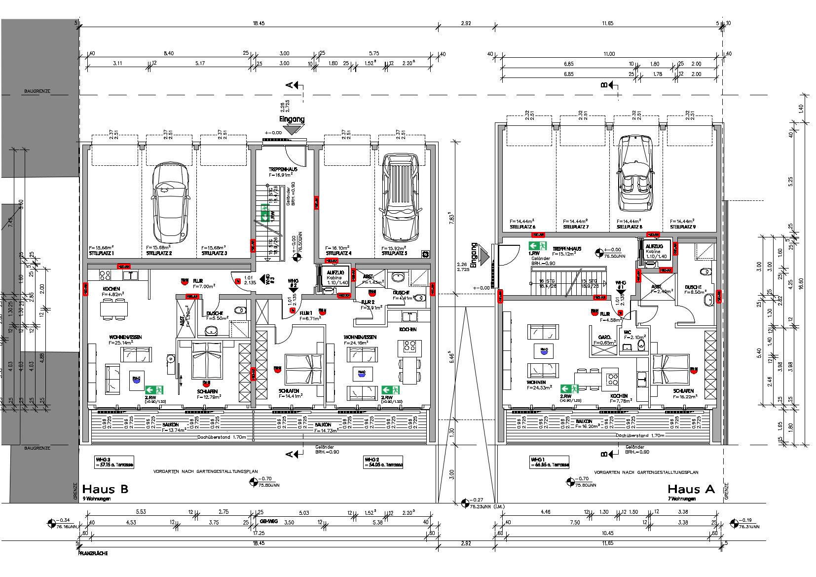
  • Ausführungszeichnungen
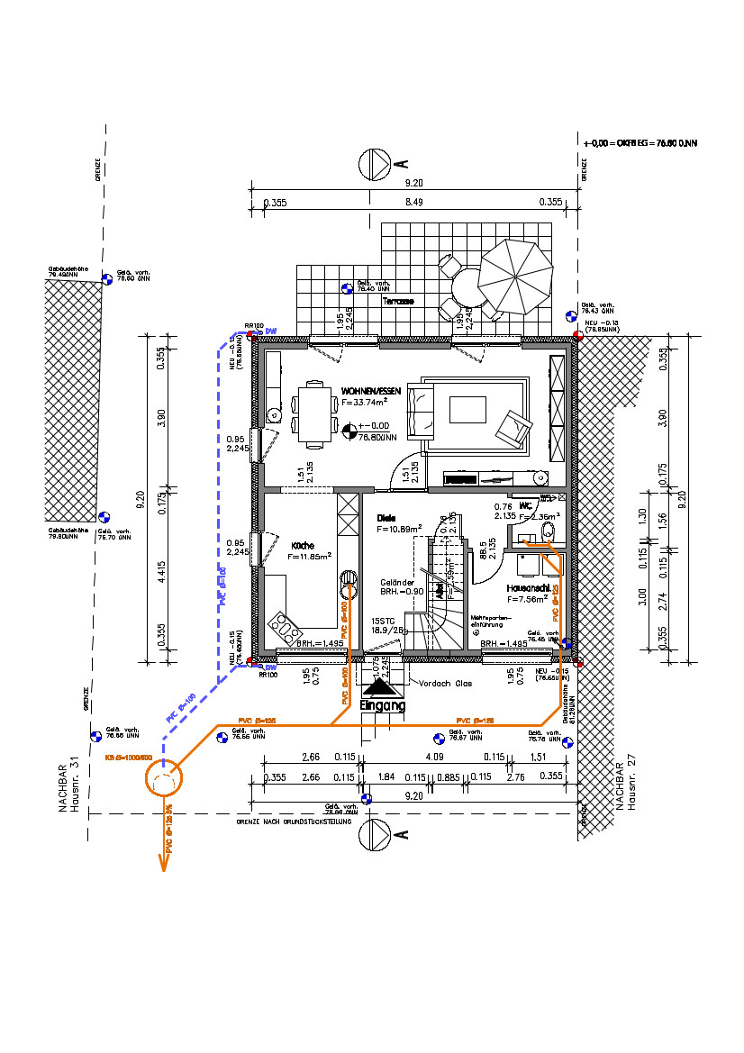
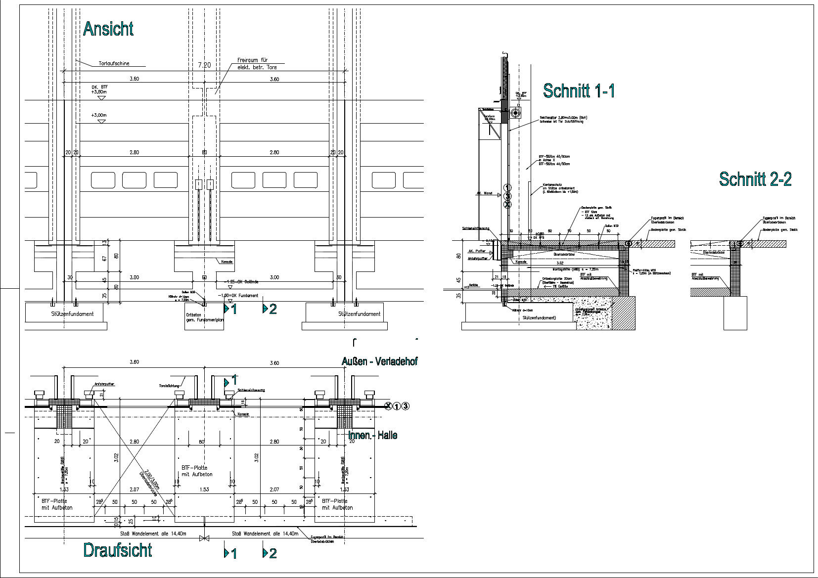
  • Detailzeichnungen
Image
Image
Image
Image
Image
Image
Image
Image
Image

 
 

©  •  Impressum